→
オーダー家具・オーダーキッチン製作 - 家具工房ツリーベ

木の天板の奥行50cmレンジ台をオーダーサイズで N様 5092

木の天板の奥行50cmレンジ台をオーダーサイズで N様 5092

一番上は炊飯器かトースター、固定棚にはオーブンレンジ、引き出し2ハイ

22万円
※2025年9月からシンプルな家具も最低製作価格を40万円とさせて頂いております。

新潟県N様ありがとうございます。効率よく材料が取れる奥行45cm以下のサイズの家具って多いんですが、こちらの奥行50cmも、日本で家電量販店に売ってるオーブンレンジのサイズがすっぽり収まるから人気のサイズ。高さも、N様がイラストを書いて郵送で送って頂いた高さ103cmで完全オーダーメードサイズ。このサイズなら自分の持っているものがちょうど入るサイズって、人ぞれぞれ違うんですよね。こういった小ぶりのキッチン収納がサイズぴったりだと、きっと引っ越ししても、人生の違うステージに行っても、また使う人が変わっても、ずっと役立つ縁の下の力持ちな小さな家具になりそうだなとよく思います。
  • 木の天板の奥行50cmレンジ台をオーダーサイズで N様 5092  イメージ-1

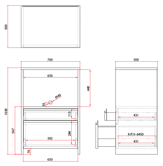
    N様にお出ししたお図面。N様は郵送のお手紙で、ご自分で書いたイラストでイメージやサイズを送って下さいました。それをもとに、製作するための設計をするとこうなりますよとお図面を郵送でお出ししながら打ち合わせいたしました。

  • 木の天板の奥行50cmレンジ台をオーダーサイズで N様 5092  イメージ-2

    裏面は配線穴あり。

  • 木の天板の奥行50cmレンジ台をオーダーサイズで N様 5092  イメージ-3

    奥行50cmでもそれ以上でもおつくりしています。サイズは自由ですが、搬入できるかどうかも事前にご相談くださいませ。幅や高さも関係してまいります。

  • 木の天板の奥行50cmレンジ台をオーダーサイズで N様 5092  イメージ-4

    引出しは2ハイ。ドイツメーカーの信頼できる片手で開閉できるキッチンレールを使っています。

木の天板の奥行50cmレンジ台をオーダーサイズで N様 5092

価格 22万円
サイズ 巾700 x 奥行き500 x 高さ1030(mm)
素材/仕上げ ■素材:ブラックチェリー材
■塗装:オイル・ワックス仕上げ、又は、ウレタン塗装仕上げ
◆天板はステンレスヘアライン仕上げ
ほかの色々な種類の木でも製作いたします。
お気軽にお問合せ下さい。

素材について詳しくはこちら
備考 大きな家具、重い家具、壁に取付ご希望の家具は、製作者本人がお宅へ伺い設置いたします。
日本全国伺っております。

こちらのアイテムは
【木の天板の奥行50cmレンジ台をオーダーサイズで N様 5092】
とお問い合わせください。

TEL: 0256-64-8722

FAX: 0256-64-8723

● ご注文時はご一読ください ●

制作事例

orig_kitchen